Складское помещение
Промзона ОАО ВЗ ГИАП территория, 452 Показать на карте
Промзона ОАО ВЗ ГИАП территория, 452 Показать на карте
Видное
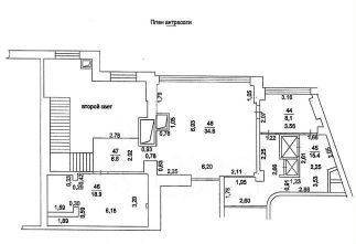
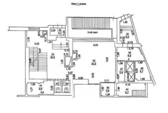
ОН 20197. Продается Действующий арендный бизнес в составе производственно-складского комплекса общей площадью 32 803 кв. м. В состав комплекса входят цех опытных установок, экспериментально-механический цех, газодувная, складской корпус, спиртохранилище, насосная . 4 этажа. Высота потолков от 5 до 16 м. Пол антипыль. Нагрузка на пол от 800 до 7000 кг /кВ.м. Приточно-вытяжная вентиляция. Кондиционирование. 19 доков оборудованы докшелтерами, доклевеллерами. 3 ворот. Пандус. Электроэнергия 3230 кВт. Водоснабжение/канализация 2400куб. м/сутки. Отопление 2 Гкал. Грузовые лифты 3 шт. на 500 кг, 2 шт. на 2500 кг. Пожарная сигнализация. Система пожаротушения. Система дымоудаления. Неограниченное количество телефонных линий. Интернет провайдер на территории. Просторная стоянка. Разворотная площадка под евро фуры. Круглосуточная охрана здания. Круглосуточный пропускной режим Бесплатный въезд. Охраняемая парковка возле здания. Гостевая парковка вдоль здания. Столовая в пяти минутах ходьбы. Объект распо ложен на территории имущественного комплекса с собственной инфраструктурой: Теплоснабжение - котельная мощностью 24 Гкалл/час Водоснабжение - водораздельный узел производительностью 3500 куб. м/сутки Электроснабжение - распределительные т трансформаторные подстанции 6/0,4 кВ в количестве 9 шт. Разрешенная мощность 5,5иМВт Водоотведение путем сброса хозяйственно-бытовых сточных вод через канализационную насосную станцию производительностью 100 куб. м/час Ливневые стоки отводятся через сеть коллекторов на собственные очистительные сооружения производительностью 100 л/с Газ, ГРП 6000 куб. м/ч
32803 м2
- Показать контакты
- Добавить в избранное
32803 м2
1 310 643 865
39 955 /м2
