2-к, Мстислава Ростроповича бульвар, 4 корп. 1 Показать на карте
Видное
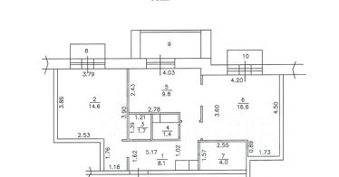
Номер лота: вт-0422480.В продаже отличная светлая ДВУХУРОВНЕВАЯ квартира в ЖК ''Видный город''.Дом монолитно-кирпичный. Cделано два полноценных этажа.Квартира БЕЗ ОТДЕЛКИ, расположена на 4 и 5 этаже (вход возможен с каждого этажа), Удобное планировочное решение - после перепланировки получилось 5 комнат - общая площадь 85 кв.м: кухня-гостиная - 22,7 кв.м., две спальни 10 и 14 кв.м., комната 20 кв.м разделена перегородкой на 2 комнаты, застекленная лоджия - 1,5 кв.м., французский балкон, коридор - 4,7 кв.м., отдельный санузел на каждом этаже, гардеробная комната, окна - стеклопакеты. Сделана лестница на второй этаж.Облагороженная придомовая территория. Во дворах безопасные детские и спортивные площадки. ЖК ''Видный город'' - проект комфорт-класса, расположенный всего в 20 минутах к югу от столицы, недалеко от подмосковного города Видное. Богатый архитектурный облик комплекса вдохновлен светским пригородом в европейском стиле, который отлично гармонирует с общим ландшафтом - расположенными недалеко старинной дворянской усадьбой Суханово и зеленым лесным массивом. Развитая инфраструктура - школа и детский сад, ТЦ ''Аструм'', магазины, кафе, аптеки.Транспортная доступность - до метро Бульвар Дмитрия Донского - 15 мин ( автобус 1224), до станции Бутово - 10 мин ( автобус 507К, 379), до метро Аннино -15 мин (маршрутка 1019), до станции Расторгуево - 10 мин ( автобус 379, 1019). Один взрослый собственник. Без обременений.Остались вопросы? ЗВОНИТЕ!!! Содействие в получении специальных условий и преференций по ипотеке.
56 м2
4 / 5 этаж
Кирпич - монолит
- Показать контакты
- Добавить в избранное
56 м2
4 / 5 этаж
Кирпич - монолит
13 000 000
230 496 /м2
