2-к, Сухановская, 23 Показать на карте
Лопатино
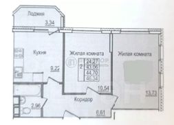
Лот 46321109. Предлагается в ЖК ''Государев дом'' отличная, светлая, теплая и уютная двухкомнатная квартира.Готовый вариант либо для жизни, либо для сдачи в аренду.- Общая площадь 48 кв.м.(с учетом лоджии),- Комнаты изолированные - 15-13,5 кв.м., - Кухня - 10,5 кв.м. (встроенный кухонный гарнитур).- Коридор - 4,5 кв.м.- Санузел - совмещен- Окна - стеклопакет.- Чистый подъезд, лифт - грузовой.- Облагороженная придомовая территория с оборудованной детской площадкой. - ЖК ''Государев дом'' расположен в деревне Лопатино Ленинского района МО, сельское Булатниковское поселение около города Видное. Развитая инфраструктура - школа, детский сад, сетевые супермакеты, ТЦ ''Аструм'', Бутовский лесопарк.- Транспортная доступность - В 2-х минутах от дома находится остановка общественного транспорта, до метро ''Бульвар Дмитрия Донского'' -15 минут транспортом, а так же от ж/д станции ''Бутово'' ходит маршрутка 379. Расстояние от МКАД всего 5 километров по Каширскому или Расторгуевскому шоссе и трассе М-4. Агент Козаева Ольга Хазбиевна, НДВ-Супермаркет недвижимости
48 м2
2 / 9 этаж
Панель
- Показать контакты
- Добавить в избранное
48 м2
2 / 9 этаж
Панель
8 700 000
181 250 /м2
