Если цена в объявлении изменится, мы сразу сообщим вам об этом на электронную почту.
Нажимая «Подписаться», вы соглашаетесь с правилами.
продам дом, 20262 кв-л16 999 000 ₽
20 янв
Дата публикации объявления
Обн. вчера
Дата обновления объявления
4
Количество просмотров (+ просмотры за сегодня)
Топ
73 909 ₽/м²
Чистая продажа
Термин "Чистая продажа" означает, что в квартире никто не прописан или
есть куда выписаться и вывезти вещи. Это лучший вариант для покупателя.
Вероятность срыва сделки минимальна.
Этажей2
Площадь участка7,3 соток
Общая площадь230 м2
ЭлектричествоЕсть
Газоснабжениецентральное
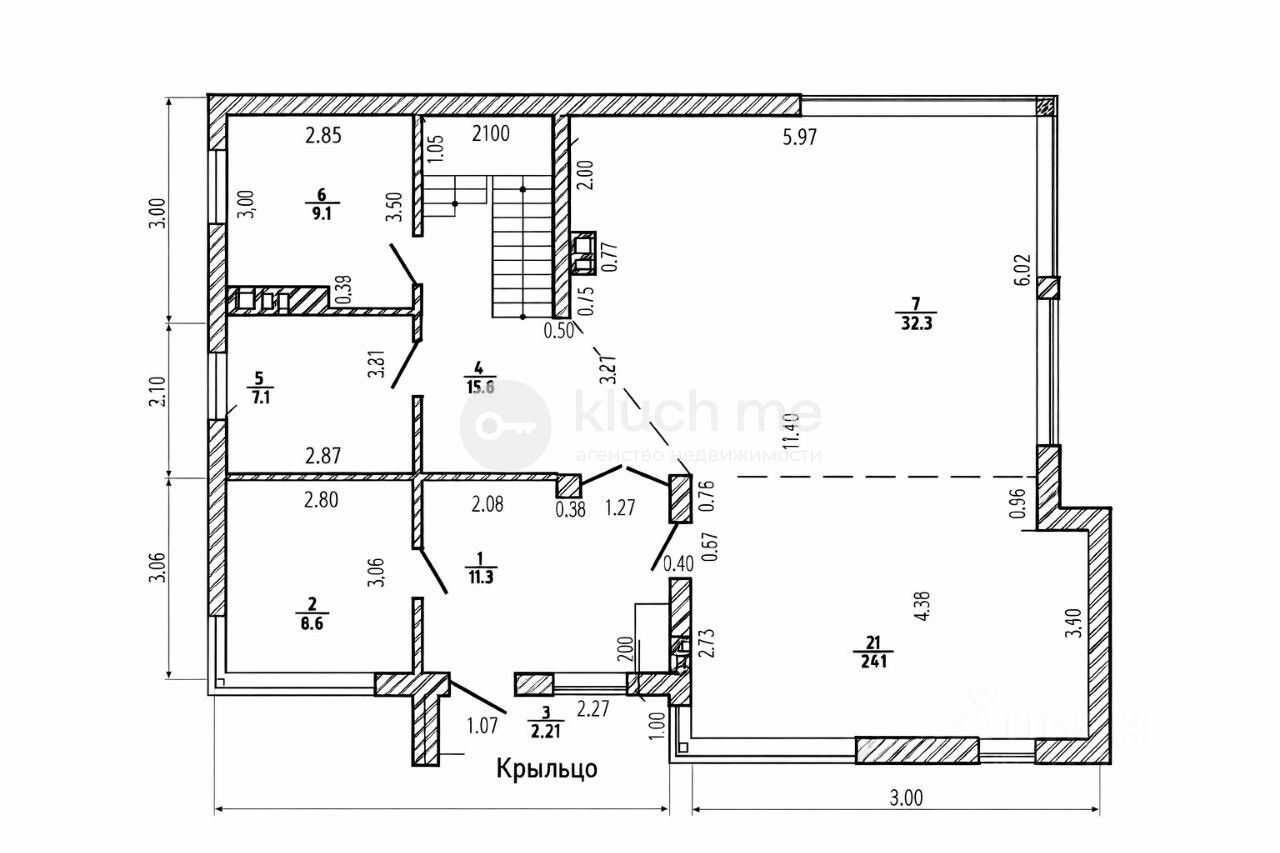
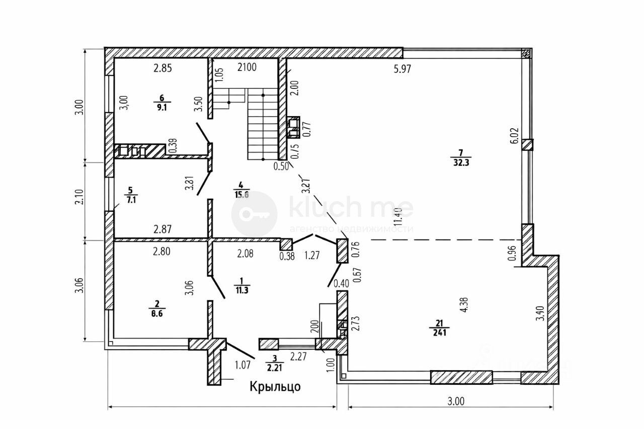
Код объекта: 2001254. Продаётся качественный двухэтажный дом в коттеджном посёлке ''Лесная Рапсодия-2''.
Планировка: просторная кухня-гостиная и 4 изолированные комнаты.
Дом с панорамным остеклением. На этапе строительства выполнены инженерные изыскания: геология и геодезия.
Конструктив и материалы:
• Фундамент — армированная монолитная плита 35 см на подбетонном основании • Стены — газобетонные блоки • Межэтажное перекрытие — армированная монолитная ж/б плита • Перекрытие второго этажа — деревянные лаги с утеплением • Кровля — скатная, мягкая черепица • Установлен камин.
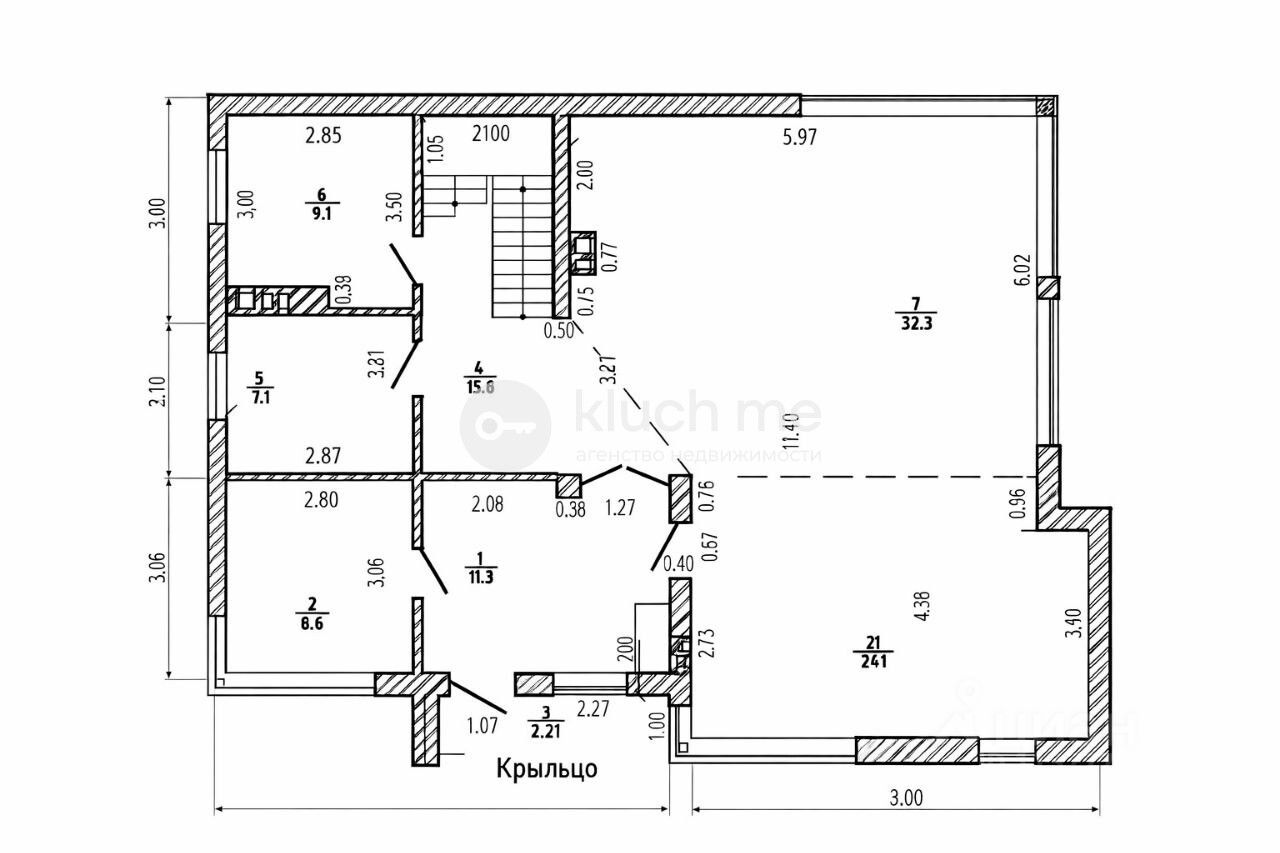
Код объекта: 2001254. Продаётся качественный двухэтажный дом в коттеджном посёлке ''Лесная Рапсодия-2''.
Планировка: просторная кухня-гостиная и 4 изолированные комнаты.
Дом с панорамным остеклением. На этапе строительства выполнены инженерные изыскания: геология и геодезия.
Конструктив и материалы:
• Фундамент — армированная монолитная плита 35 см на подбетонном основании • Стены — газобетонные блоки • Межэтажное перекрытие — армированная монолитная ж/б плита • Перекрытие второго этажа — деревянные лаги с утеплением • Кровля — скатная, мягкая черепица • Установлен камин.
Инженерные системы:
• Тёплые полы: весь 1 этаж, на 2 этаже — санузел • Все коммуникации централизованные и подключены: газ, вода, канализация, ливневая канализация • Внешняя канализация выполнена через колодцы подключения (угол 90)
Внутренние сети выполнены и подключены:
• Канализация • Отопление (в том числе радиаторы) • Водоснабжение • Полотенцесушители • Выводы под унитазы, биде, душевые, ванны и раковины
Электрика:
• Кабели разведены в стяжке пола • Выводы под розетки, выключатели, освещение, ТВ • Выведено питание под подсветку кровли
Оборудование:
• Газовый котёл Kentatsu • Бойлер косвенного нагрева Aquatic • Бойлерная облицована плиткой • Управление отоплением через телефон