Если цена в объявлении изменится, мы сразу сообщим вам об этом на электронную почту.
Нажимая «Подписаться», вы соглашаетесь с правилами.
продам 1-к, Завидная, 117 200 000 ₽
25 дек
Дата публикации объявления
Обн. 23 мар
Дата обновления объявления
180 905 ₽/м²
Чистая продажа
Термин "Чистая продажа" означает, что в квартире никто не прописан или
есть куда выписаться и вывезти вещи. Это лучший вариант для покупателя.
Вероятность срыва сделки минимальна.
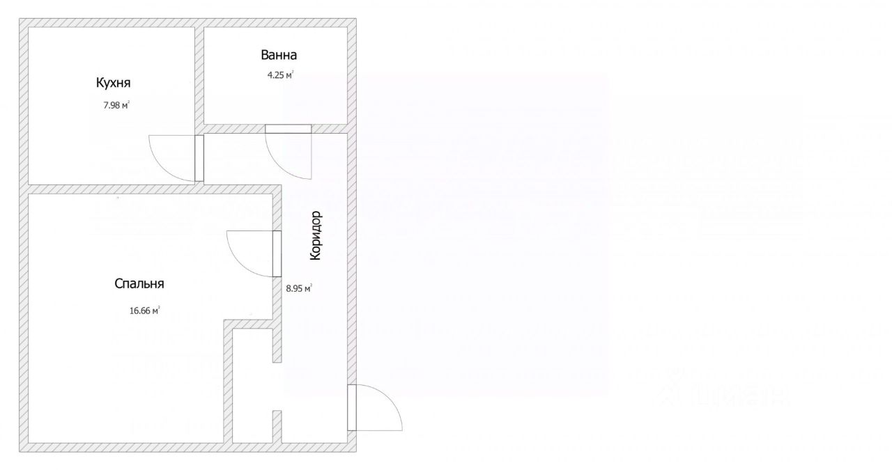
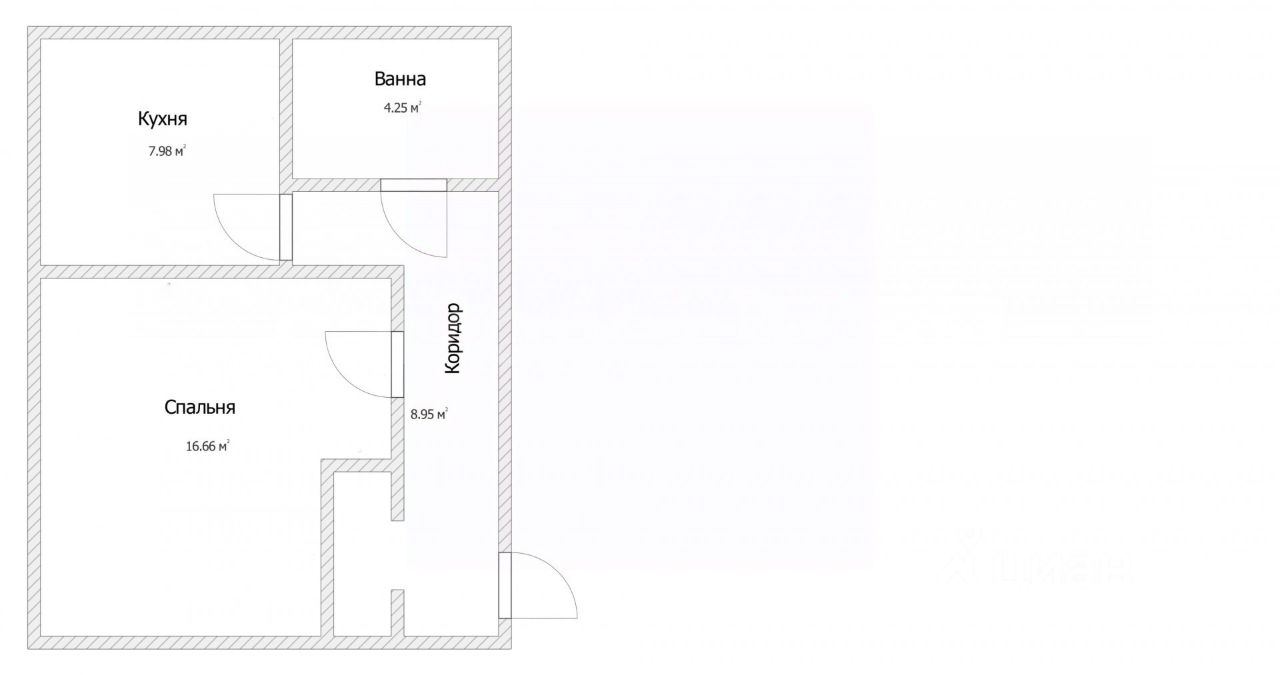
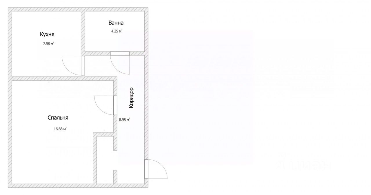
Откройте новую главу вашей жизни в Видном! Представляем вашему вниманию уютную 1-комнатную квартиру, идеальный вариант для комфортного проживания или выгодной инвестиции в престижном городе Видное. Основные преимущества: Гибкие условия покупки: Квартира подходит под ипотеку и материнский капитал. Простор и функциональность: Общая площадь 39,8 кв.м., жилая комната 16,87 кв.м., кухня 7,83 кв.м. Удобство: Совмещенный санузел и застекленная лоджия для вашего комфорта. Высокий этаж: Расположена на 16-м этаже 17-этажного панельного дома, что обеспечивает прекрасный вид и отсутствие соседей сверху. Развитая инфраструктура в шаговой доступности: Для семей с детьми: Детские сады и школы рядом с домом.
Откройте новую главу вашей жизни в Видном! Представляем вашему вниманию уютную 1-комнатную квартиру, идеальный вариант для комфортного проживания или выгодной инвестиции в престижном городе Видное. Основные преимущества: Гибкие условия покупки: Квартира подходит под ипотеку и материнский капитал. Простор и функциональность: Общая площадь 39,8 кв.м., жилая комната 16,87 кв.м., кухня 7,83 кв.м. Удобство: Совмещенный санузел и застекленная лоджия для вашего комфорта. Высокий этаж: Расположена на 16-м этаже 17-этажного панельного дома, что обеспечивает прекрасный вид и отсутствие соседей сверху. Развитая инфраструктура в шаговой доступности: Для семей с детьми: Детские сады и школы рядом с домом. Здоровье и красота: Медицинские центры, стоматологии, фитнес-клубы, центр йоги, салоны красоты. Досуг и развлечения: Кафе, рестораны, бильярдный клуб, футбольная академия. Удобство каждый день: Сетевые продуктовые магазины, пункты выдачи интернет-заказов. Отдых на природе: Смотровая площадка и зоны для отдыха. Превосходная транспортная доступность: Тихий район с отличным расположением. В шаговой доступности автобусные остановки с регулярными рейсами до станций метро ''Домодедовская'' и ''Царицыно''. Всего 13 км до МКАД. Для вашего удобства: покупку можно оформить в ипотеку по ставке от 11,9% годовых Не упустите свой шанс! Звоните прямо сейчас! Мы работаем без выходных, готовы ответить на все ваши вопросы и помочь сделать правильный выбор. Ваша новая жизнь начинается здесь! Кадастровый номер: 50:21:0080105:3946 #0505