Если цена в объявлении изменится, мы сразу сообщим вам об этом на электронную почту.
Нажимая «Подписаться», вы соглашаетесь с правилами.
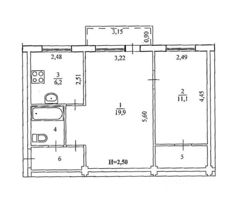
продам 2-к, пос. Совхоза Ленина, 37 300 000 ₽
7 окт
Дата публикации объявления
Обн. 7 ноя
Дата обновления объявления
158 696 ₽/м²
Чистая продажа
Термин "Чистая продажа" означает, что в квартире никто не прописан или
есть куда выписаться и вывезти вещи. Это лучший вариант для покупателя.
Вероятность срыва сделки минимальна.
Просторная и тёплая квартира в центре с/х им. Ленина. Идеальный вариант для семьи, пары или сдачи в аренду. Единственный собственник после приватизации, без обременений, свободная продажа — быстрый выход на сделку! Подходит для Ипотеки.
Дом после капремонта (5 лет): новые трубы отопления и биметаллические радиаторы. Кухня и мал. комната с новыми окнами ПВХ. Балкон застеклён (деревянные рамы). Окна на восток. Комнаты смежные — можно изолировать или объединить с кухней С мебелью по желанию покупателя - без доплаты.
Преимущества локации дома: 100 м - Автобусная остановка. 2 остановки до м.
Просторная и тёплая квартира в центре с/х им. Ленина. Идеальный вариант для семьи, пары или сдачи в аренду. Единственный собственник после приватизации, без обременений, свободная продажа — быстрый выход на сделку! Подходит для Ипотеки.
Дом после капремонта (5 лет): новые трубы отопления и биметаллические радиаторы. Кухня и мал. комната с новыми окнами ПВХ. Балкон застеклён (деревянные рамы). Окна на восток. Комнаты смежные — можно изолировать или объединить с кухней С мебелью по желанию покупателя - без доплаты.
Преимущества локации дома: 100 м - Автобусная остановка. 2 остановки до м. Домодедовская 150 м — Перекрёсток, ВкусВилл, Озон, Wildberries, Бургер Кинг 170 м — Детские сады 570 м — Инженерный корпус московской школы 548 (ТОП 20 лучших школ Москвы) 400 м Областная районная школа 200 м Детская и взрослая поликлиника 300 м — Бесплатный фитнес по документам о собственности 280 м — Любифитнес с большим бассейном 400 м — огороженный парк с прудами и бесплатными зонами отдыха с мангалами. Вход для жителей поселка с/х им. Ленина 600 м — ТРЦ VEGAS 400 м Лемана Про
Всё необходимое в шаговой доступности: Сады, школы, продовольственные магазины, салоны красоты, рестораны, детский парк, парк с прудами, открытый каток с искусственным льдом , спортивные и детские площадки, амбулатория, аптеки, Гемотест, ветеринарная клиника, зоомагазин, бесплатные и платные секции для детей и взрослых, фитнесс, тренажерный зал, рестораны, столовая, Бургер Кинг, Вкусно и точка, ТРЦ VEGAS, Лемана Про и др.