Термин "Чистая продажа" означает, что в квартире никто не прописан или
есть куда выписаться и вывезти вещи. Это лучший вариант для покупателя.
Вероятность срыва сделки минимальна.
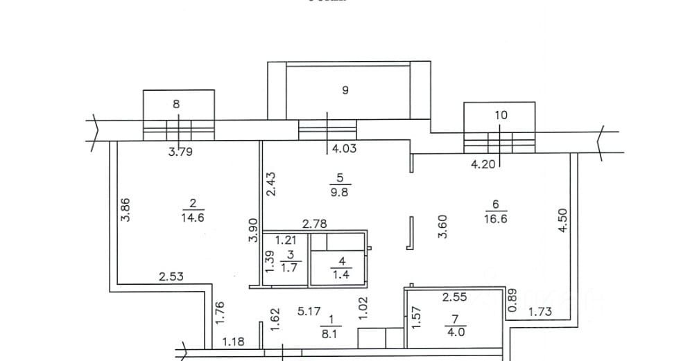
Вашему вниманию предлагается двухкомнатная квартира в комплексе с уникальной архитектурой и комфорт-класса ЖК ''Видный город''. Дом бизнес-класса, только в одной линии такие дорогие дома, бизнес-класса ,остальные дома гораздо дешевле . Дом повышенной комфортности, два лифта на подъезд. Квартира с двумя французскими окнами до пола и французскими балконами, спальня с французским балконом, окна до пола, высота потолка 3,07м , с кухни также есть выход на большую лоджию, даже в этом доме французские окна есть не на всех этажах, только на шестом и седьмом , также в квартире предусмотрены два санузла один гостевой и один основной, отдельная комната под гардеробную . Полы наливные, под полами шумоизоляция . На первом этаже огромный холл, кладовка, где можно ставить коляски и велосипеды, консьерж .
Вашему вниманию предлагается двухкомнатная квартира в комплексе с уникальной архитектурой и комфорт-класса ЖК ''Видный город''. Дом бизнес-класса, только в одной линии такие дорогие дома, бизнес-класса ,остальные дома гораздо дешевле . Дом повышенной комфортности, два лифта на подъезд. Квартира с двумя французскими окнами до пола и французскими балконами, спальня с французским балконом, окна до пола, высота потолка 3,07м , с кухни также есть выход на большую лоджию, даже в этом доме французские окна есть не на всех этажах, только на шестом и седьмом , также в квартире предусмотрены два санузла один гостевой и один основной, отдельная комната под гардеробную . Полы наливные, под полами шумоизоляция . На первом этаже огромный холл, кладовка, где можно ставить коляски и велосипеды, консьерж . Рядом с ЖК две школы, детский сад, до метро Бульвар Дмитрия Донского- 10 минут на общественном транспорте. На территории ЖК есть продовольственные магазины, Вкусвилл, кафе и другие. Строится скоростная дорога. Все документы готовы к сделке. по запросу высылаю подробное видео.