Дом, Тарычево Показать на карте
Тарычево
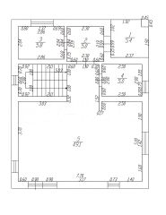
Продается большой 3-х этажный кирпичный коттедж со всеми удобствами в г.Видное, ТЛПХ Загорье. От МКАД 1,5 км., 5 минут на машине. Общая площадь 460кв.м., есть так же подвальное помещение 100кв.м. Центральная канализация, водопровод, газ и электричество, конидиционер.В доме есть сауна, 3 с/у, спорт зал, гараж, зимний сад. В подвале с/у и джакузи с сауной, спорт зал, котельная, на 1-м этаже кухня, гостиная-столовая, веранда. На 2-м этаже 3 спальни, с/у и зимний сад. Полы-керамогранит с водяным подогревом. Дом под охраной, дорогая качественная отделка из современных материалов, итальянская мебель. Прямоугольный участок 14 соток огорожен, произведен ландшафтный дизайн. Так же есть баня с бассейном и комнатой отдыха на дровах с бассейном, санузлом. Выделена крытая веранда с зоной барбекю.Территория поселка огорожена, въезд через автоматические ворота.Развитая инфраструктура г. Видное и остановка общественного транспорта в пешей доступности. Также в пяти минутах езды ж/д станция Расторгуево.В шаговой доступности вся городская инфраструктура г. Видное, школы, садики, магазины, 5 минут на машине до ст. Расторгуево, .
460 м2
3 этажа
Кирпич
- Показать контакты
- Добавить в избранное
460 м2
3 этажа
Кирпич
39 000 000
84 783 /м2
